---
title: "Stege Midtby"
description: "1-103"
date: "2026-04-17"
created: "2025-01-08"
---

-
-
-
-
-
-
-
-
-
-
-
-

https://maps.google.dk/?q=54.9892699,12.2904725

# Stege Midtby

Afdeling 103

## Velkommen til afdeling 103 Stege Midtby

Afdelingen Stege Midtby omfatter bebyggelserne på Rødstensvej, Gåsetorvet og Sct. Gertrudsstræde (Sct. Gertrudsstræde 1-15 er ungdomsboliger). Bebyggelserne ligger centralt i Stege by, tæt på indkøb og byens aktive handelsstrøg. Ejendommene opvarmes med fjernvarme, er tilsluttet Stege Antennelaug og der er installeret komfur, emhætte og køleskab.
Bebyggelsen på Rødstensvej indeholder 21 rækkehuse i 2 plan, som blev opført i 1982. Bebyggelsen på Gåsetorvet omfatter 38 lejemål som er opført i 1985 i 2 plan på en tidligere hotelgrund. Der er elevator i forhuset og fællesvaskeri i kælderen. Bebyggelsen i Sct. Gertrudsstræde omfatter 14 lejemål opført i 1988 / 1989. Der er fællesvaskeri i kælderen.

## Faciliteter

Elevator

Ja

Elevatoradgang

Altan

Ja

Elevator

Elevatoradgang

Fællesvaskeri

Ja

Byggeår

1880,1963,1988

Husdyr

Ja

Se husorden i ”Afdelingsdokumenter” (længere ned på siden), da der er forskellige regler afhængig af adressen.

## Boligtyper i afdelingen

Almen bolig

1 værelses

Almen bolig

Ungdomsbolig

1 værelses

Ungdomsbolig

Almen bolig

2 værelses

Almen bolig

Almen bolig

3 værelses

Almen bolig

Almen bolig

4 værelses

Almen bolig

Boligtype

Værelser

Størrelse

Husleje

Indskud/dp

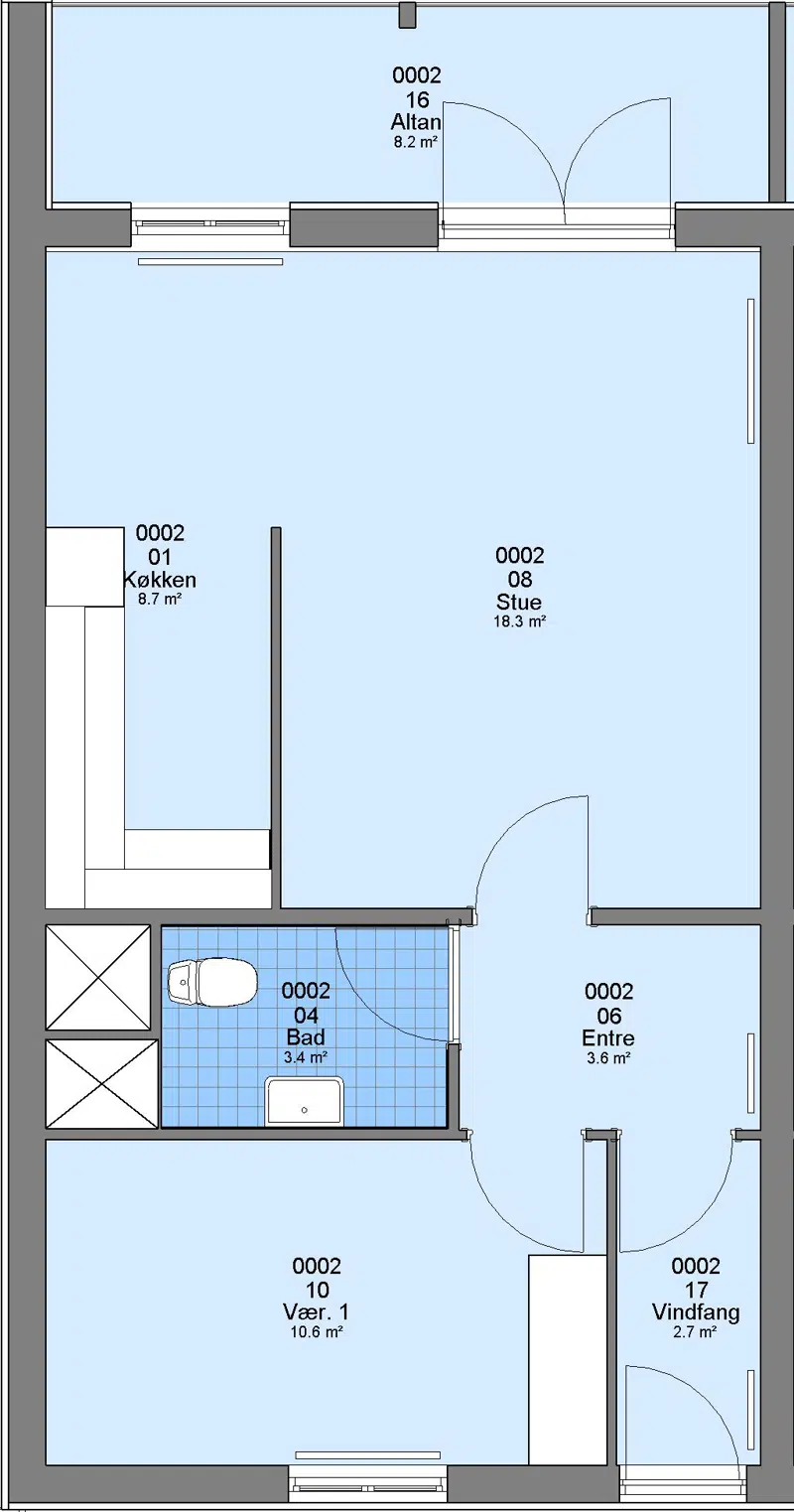
Plantegning

Almen bolig

1

48 m²

4189 kr.

14100 kr.

![](https://vorbo.dk/i/MOLIRIMEDIA/0c85fdca-62fb-4f8b-bab8-08dd864abefd?width=800)

Almen bolig

2

68 m²

5031 kr.

17000 kr.

![](https://vorbo.dk/i/MOLIRIMEDIA/ee3306bc-b5d3-4af2-baa5-08dd864abefd?width=800)

Almen bolig

2

64 m²

4846 kr.

16000 kr.

![](https://vorbo.dk/i/MOLIRIMEDIA/2be7347e-3a4b-4dd3-b3be-08dd864abefd?width=800)

Almen bolig

2

55 m²

4561 kr.

15500 kr.

![](https://vorbo.dk/i/MOLIRIMEDIA/b3d0b688-268d-490a-b7c1-08dd864abefd?width=800)

Almen bolig

2

57 m²

4941 kr.

14900 kr.

![](https://vorbo.dk/i/MOLIRIMEDIA/b5893965-5f58-4287-b81b-08dd864abefd?width=800)

Almen bolig

3

78 m²

6152 kr.

26500 kr.

![](https://vorbo.dk/i/MOLIRIMEDIA/bee82dca-ce2c-48b8-babf-08dd864abefd?width=800)

Almen bolig

3

69 m²

5514 kr.

23500 kr.

![](https://vorbo.dk/i/MOLIRIMEDIA/bb9ce0ec-a7f0-4ef1-b573-08dd864abefd?width=800)

Almen bolig

3

95 m²

6239 kr.

21600 kr.

![](https://vorbo.dk/i/MOLIRIMEDIA/de387f9d-be58-4522-b73a-08dd864abefd?width=800)

Almen bolig

3

81 m²

5624 kr.

19000 kr.

![](https://vorbo.dk/i/MOLIRIMEDIA/bf69de54-9a11-4fcd-bb55-08dd864abefd?width=800)

Almen bolig

3

70 m²

5735 kr.

19800 kr.

![](https://vorbo.dk/i/MOLIRIMEDIA/2f296f47-6b6b-41f8-ba6e-08dd864abefd?width=800)

Almen bolig

3

66 m²

5465 kr.

17000 kr.

![](https://vorbo.dk/i/MOLIRIMEDIA/62618b68-981d-488d-b7c5-08dd864abefd?width=800)

Almen bolig

3

82 m²

6146 kr.

20000 kr.

![](https://vorbo.dk/i/MOLIRIMEDIA/e407f926-9132-44f8-b673-08dd864abefd?width=800)

Almen bolig

3

72 m²

5493 kr.

18500 kr.

![](https://vorbo.dk/i/MOLIRIMEDIA/787bf55a-55e3-4bb3-b4fb-08dd864abefd?width=800)

Almen bolig

3

80 m²

6210 kr.

18000 kr.

![](https://vorbo.dk/i/MOLIRIMEDIA/e940dc85-c475-4bbd-b9ad-08dd864abefd?width=800)

Almen bolig

4

110 m²

6469 kr.

24000 kr.

![](https://vorbo.dk/i/MOLIRIMEDIA/088bc429-e26f-4364-b635-08dd864abefd?width=800)

Almen bolig

4

115 m²

6992 kr.

24000 kr.

![](https://vorbo.dk/i/MOLIRIMEDIA/48f4d1c9-18c7-4889-b49f-08dd864abefd?width=800)

Ungdomsbolig

1

31 m²

3239 kr.

7527 kr.

![](https://vorbo.dk/i/MOLIRIMEDIA/762a659e-1365-4ad1-bab5-08dd864abefd?width=800)

## Afdelingsdokumenter

Her finder du nyttig information om din afdeling, såsom husorden, vedligeholdelse af dit lejemål, eller referater fra hovedbestyrelsen.

###

                                                Husorden

[103, Husorden, godk. 14-3-2022.pdf](https://vorbo.dk/p/Files/Files/eBolig/Dokumenter/AfdelingerEGeksport/01_103/Husorden/103--Husorden--godk.-14-3-2022.pdf)
                                            [103, husorden godk. 2015-03-17.pdf](https://vorbo.dk/p/Files/Files/eBolig/Dokumenter/AfdelingerEGeksport/01_103/Husorden/103--husorden-godk.-2015-03-17.pdf)
                                            [103, Husorden godk. 2022-03-14.pdf](https://vorbo.dk/p/Files/Files/eBolig/Dokumenter/AfdelingerEGeksport/01_103/Husorden/103--Husorden-godk.-2022-03-14.pdf)
                                            [Fælleslokaler Langgade 61 B - regulativ.pdf](https://vorbo.dk/p/Files/Files/eBolig/Dokumenter/AfdelingerEGeksport/01_103/Husorden/F&#xE6;lleslokaler-Langgade-61-B---regulativ.pdf)

###

                                                Vedligeholdelsesreglement

[103, vedligeholdelsesreglement A-ordning, godk. 2012-01-17.pdf](https://vorbo.dk/p/Files/Files/eBolig/Dokumenter/AfdelingerEGeksport/01_103/Vedligeholdelsesreglement/103--vedligeholdelsesreglement-A-ordning--godk.-2012-01-17.pdf)

## Afdelingsbestyrelsesmedlemmer

Navn

Email

Gitte Alice Madsen Jensen

gitte.jensen@os.dk

Hans-Henrik Pedersen

Niels Kristian Jagd Hoff

Ane Brønnum Jensen

Nicolai Rath

Tina Kvong

Birgitte Hansen

## Kontakt - Bo Holsmose

### Ejendomsfunktionær

Adresse:

4780 Stege

## Kontakt - Søren Jeppesen

### Driftsleder

Adresse:

20418696

soren@vorbo.dk

## Placering
