---
title: "Stensved"
description: "1-4"
date: "2026-04-17"
created: "2025-01-08"
---

-
-
-

https://maps.google.dk/?q=54.9978157,12.0135891

# Stensved

Afdeling 4

## Velkommen til afdeling 4 Stensved

Vores afdeling i i Stensved omfatter boligområderne på Vægtervej, på Åbakken, på Hotelgrunden og på Vordingborgvej 41. Stensved er i udvikling med gode indkøbsmuligheder og tæt beliggende ved Sydmotorvejen, hvor der kun er 100 km. til København.
Lejlighederne på Vægtervej og Åbakken er rækkehuse i ét plan beliggende ved Langebæk Hallen.
Lejlighederne på Hotelgrunden og Vordingborgvej 41, er begge ejendomme i 2 etager.
Som det fremgår, er der stor variation af lejlighederne i denne afdeling. Der henvises derfor til administrationen for nærmere information.
Bemærk at fællesvaskeri kun er for lejemålene Vordingborgvej 41. Øvrige lejemål har installation til vaskemaskine i lejemålet.

## Faciliteter

Altan

Ja

Fællesvaskeri

Ja

Byggeår

1983,1992,2001

Husdyr

Ja

1 kat eller 1 hund tilladt efter ansøgning.

## Boligtyper i afdelingen

Almen bolig

1 værelses

Almen bolig

Almen bolig

2 værelses

Almen bolig

Ældrebolig

2 værelses

Ældrebolig

Almen bolig

3 værelses

Almen bolig

Ældrebolig

3 værelses

Ældrebolig

Almen bolig

4 værelses

Almen bolig

Boligtype

Værelser

Størrelse

Husleje

Indskud/dp

Plantegning

Almen bolig

1

42.6 m²

3544 kr.

11500 kr.

![](https://vorbo.dk/i/MOLIRIMEDIA/1038318f-d910-4c84-b662-08dd864abefd?width=800)

Almen bolig

2

64.75 m²

5496 kr.

19000 kr.

![](https://vorbo.dk/i/MOLIRIMEDIA/9d156bc7-6c00-4e3b-b57d-08dd864abefd?width=800)

Almen bolig

2

83 m²

5486 kr.

23000 kr.

![](https://vorbo.dk/i/MOLIRIMEDIA/0d5d4378-5621-4c56-b5bb-08dd864abefd?width=800)

Almen bolig

2

66.4 m²

4550 kr.

20000 kr.

![](https://vorbo.dk/i/MOLIRIMEDIA/b1caffef-9eb7-4966-b632-08dd864abefd?width=800)

Almen bolig

3

84.5 m²

6835 kr.

23000 kr.

![](https://vorbo.dk/i/MOLIRIMEDIA/8a870646-aed6-411b-b594-08dd864abefd?width=800)

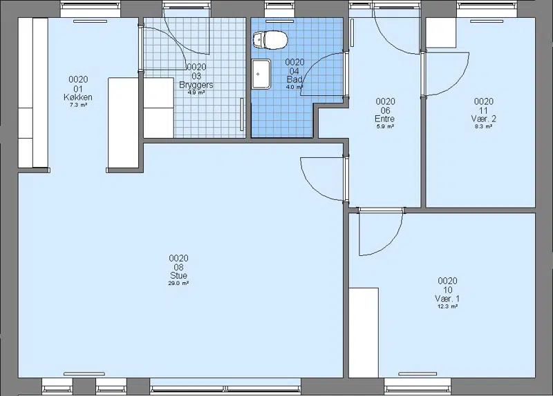
Almen bolig

3

108 m²

6443 kr.

27000 kr.

![](https://vorbo.dk/i/MOLIRIMEDIA/c0ac8fc9-3903-42c1-b63e-08dd864abefd?width=800)

Almen bolig

3

88 m²

5494 kr.

23000 kr.

![](https://vorbo.dk/i/MOLIRIMEDIA/f12bae08-14a3-4607-b5bf-08dd864abefd?width=800)

Almen bolig

3

85.2 m²

5456 kr.

23000 kr.

![](https://vorbo.dk/i/MOLIRIMEDIA/475f34c0-24bd-4a3e-b3e6-08dd864abefd?width=800)

Almen bolig

4

100 m²

7889 kr.

27000 kr.

![](https://vorbo.dk/i/MOLIRIMEDIA/7945f80c-adcc-4892-b9e1-08dd864abefd?width=800)

Almen bolig

4

112 m²

6850 kr.

27000 kr.

![](https://vorbo.dk/i/MOLIRIMEDIA/cb840d0c-0c89-45d5-b9a6-08dd864abefd?width=800)

Almen bolig

4

104.3 m²

6428 kr.

27000 kr.

![](https://vorbo.dk/i/MOLIRIMEDIA/88b1e3bb-abd3-4962-b8c9-08dd864abefd?width=800)

Ældrebolig

2

67 m²

4699 kr.

20000 kr.

![](https://vorbo.dk/i/MOLIRIMEDIA/2b136a33-9d4c-46ba-ba45-08dd864abefd?width=800)

Ældrebolig

3

85 m²

5455 kr.

23000 kr.

![](https://vorbo.dk/i/MOLIRIMEDIA/bb57ebe5-445f-4853-b6d8-08dd864abefd?width=800)

## Afdelingsdokumenter

Her finder du nyttig information om din afdeling, såsom husorden, vedligeholdelse af dit lejemål, eller referater fra hovedbestyrelsen.

###

                                                Husorden

[004, husdyrregulativ godk. 2013-03-11.pdf](https://vorbo.dk/p/Files/Files/eBolig/Dokumenter/AfdelingerEGeksport/01_004/Husorden/004--husdyrregulativ-godk.-2013-03-11.pdf)
                                            [004, husorden godk. 2018-03-19.pdf](https://vorbo.dk/p/Files/Files/eBolig/Dokumenter/AfdelingerEGeksport/01_004/Husorden/004--husorden-godk.-2018-03-19.pdf)
                                            [004, Husorden godk. 2023-02-07.pdf](https://vorbo.dk/p/Files/Files/eBolig/Dokumenter/AfdelingerEGeksport/01_004/Husorden/004--Husorden-godk.-2023-02-07.pdf)
                                            [004, Husorden godk. 2026-03-11.pdf](https://vorbo.dk/p/Files/Files/eBolig/Dokumenter/AfdelingerEGeksport/01_004/Husorden/004--Husorden-godk.-2026-03-11.pdf)

###

                                                Vedligeholdelsesreglement

[004, vedligeholdelsesreglement A-ordning, godk. 2010-03-18.pdf](https://vorbo.dk/p/Files/Files/eBolig/Dokumenter/AfdelingerEGeksport/01_004/Vedligeholdelsesreglement/004--vedligeholdelsesreglement-A-ordning--godk.-2010-03-18.pdf)

## Afdelingsbestyrelsesmedlemmer

Navn

Email

Anette Toft Boelskov

anettetoft@hotmail.dk

Vivian Elin Nielsen

Hanne Hindborg Larsen

Bente Fromberg Hansen

Anne Chastine Gefke Andersen

## Kontakt - Janus Lønstrøm

### Ejendomsfunktionær

Adresse:

4773 Stensved

## Kontakt - Søren Jeppesen

### Driftsleder

Adresse:

20418696

soren@vorbo.dk

## Placering
